
I’m often on a search for homes that would fit within established neighborhoods. A home that would look like it has always been there. Not always, because I do like so many styles from traditional to modern. This plan struck me as a delight with the all encompassing porch that could be a wonderful area to spend time. It’s like a cozy hug to be up on your porch greeting your neighbors. What a delightful place to be!
This is the Lafayette Parish House Plan by R.N. Black Associates for Southern Living. This plan is 2,747 square feet with 3 bedrooms and 3.5 bathrooms. Let’s take a peek…
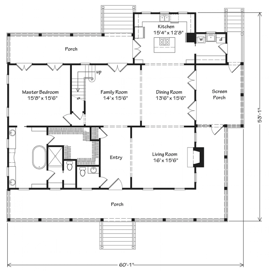
You enter the main floor from the fabulous porch. As you walk into the entry space you have the family room directly in front of you (in the back of the house) and to the right is the living room which looks into the dining and kitchen (in the back of the house). The entire left side of this plan is the master suite. And it is pretty fabulous!
Notice the back porch, perfect for times when you’re into a good book and don’t want to be interrupted. Also, a screened porch off the dining room. Very nice! Can you imagine entertaining in this space? There is room for people to move around, inside, outside – wonderful!
The upstairs has two bedrooms each with a bathroom and a nice study/loft area at the top of the stairs. This plan is a beauty! See more information below!
R.N. Black Associates for Southern Living
Website | Facebook | Instagram | This Plan
🏠 I work with architects/designers from all over. If you’re interested in one of their plans, please let them know that you saw it here on artfoodhome.com!
Until next time…

