
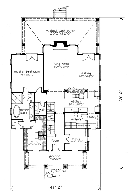
Dewy Rose… plan SL1842 available at Southern Living House Plans – this house was designed by architect Mitchell Ginn from Newnan, GA. It’s a creative plan that is a good fit for many with a small lot. The house is approximately 2753 square feet. There are optional layouts, I’m just showing you one… click on the link to see others… This is a nice open floor plan with 4 bedrooms and 3.5 bathrooms. I like that this house has both a front and back porch.

It’s nice that the master bedroom is downstairs, and that there is a PANTRY in the kitchen, woohoo! Nice to screen the back porch and then have the french doors that open into your bedroom and eating area wide open with no bugs, a definite plus!

So nice that the upstairs has attic storage! I would also use maybe the vaulted bonus room as a place for the treadmill and storage of anything that can take the heat (Christmas decorations we learned the hard way…) what are your thoughts on this plan?
Catch you back here tomorrow!
F L A S H B A C K !
O n e Y e a r A g o: Poor Me, took a sick day… Lucky You… info from G.O.Logic blog!
T w o Y e a r s A g o: Indian Chicken Curry Recipe – Sounds good right now!
T h r e e Y e a r s A g o: Edward Hopper quote
I love looking at the floor plans that you post…and dreaming!!
LikeLike