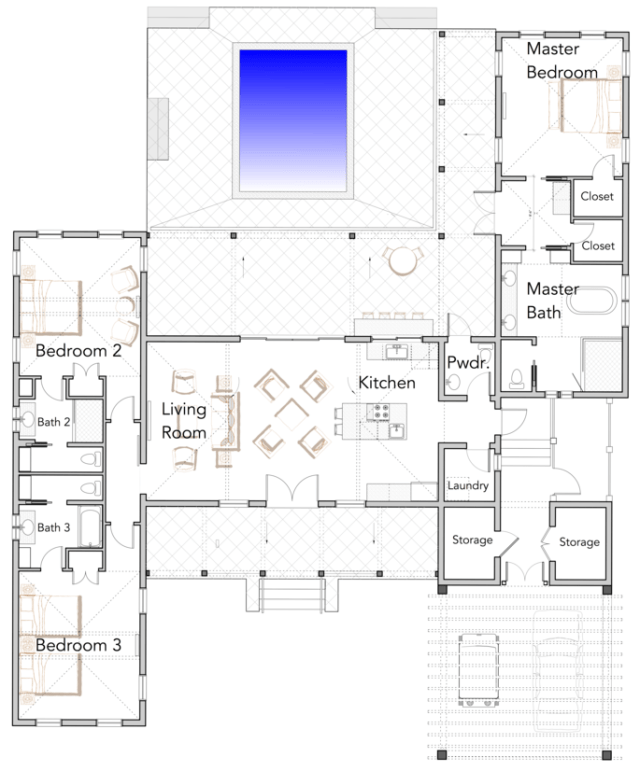
This is the Winward Villa by Flatfish Island Designs. This plan is 2,200 square feet with 3 bedrooms and 3.5 bathrooms (but can be customized to include more/less). You really need to look at the real life images of this one. Stunning design. I love how you see through from the entrance, to the living space and through to the pool behind the house. Breathtaking! See that area on the right? It’s a pergola where you park. See the actual images! Very nice…
This house has plentiful storage, which is ideal! A few of my favorite aspects of this plan is that the guest rooms are secluded away from the master bedroom. I think it’s nicer for guests to be in a different wing of a house than it is right next to the master. I like the openness of the Kitchen/Living and the abundance of open air living with the wonderful courtyard areas accessible both from the living area as well as the Master Bedroom. The only thing I would (personally) change is to eliminate the water closets. I know that’s the style right now, but it’s too much for me, I’ve never been big on that concept. That’s just me…
See actual images of this home, interior and exterior. It really helps you visualize it. Stunning use of space!
All images via FlatFishIslandDesigns.com, used with permission…
Images are not for construction or reproduction, they are property of the architectural firm.
Catch you back here tomorrow!

