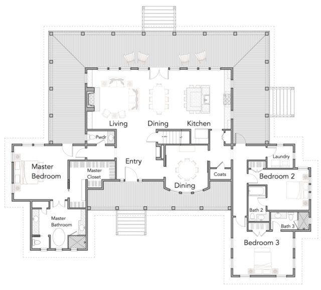
This is the Saltwater Rest house plan by Flatfish Island Designs. This plan is 2,686 square feet with 3 bedrooms and 3.5 bathrooms. This is such a sharp home from the outside, but just wait until you see the house plan! This plan is perfect anywhere, especially wonderful if you have a view! A great plan for entertaining!
What a great layout! I love how the master suite is on one side and the guest bedrooms are on the other side of the house. Each bedroom has a bathroom, as well as a powder room located off the entry. There is an open living, dining, kitchen area as well as a separate dining area. Perfect for a party, right? If you don’t need another dining room, it would be a great office or another living space (reading room!). I love that Flatfish incorporates a lot of porches in their plans. Everyone loves a porch! Just look how much room it gives you outside!
All images via FlatfishIslandDesigns.com, used with permission…
Images are not for construction or reproduction, they are property of the architectural firm.
Catch you back here tomorrow!

