Southern Gothic house plan by Mitch Ginn for Southern LivingThis is the Southern Gothic house plan (SL 1921) by Mitch Ginn for Southern Living. This plan is 3,416 square feet with 4-5 bedrooms and 3.5 bathrooms in the main home as well as an optional bonus suite that would provide an additional bedroom and bathroom.
Isn’t this plan fabulous?! Just look at that wrap around porch! Ahhhh! The peaks in the gables as well as the garage are fabulous! This house is a beauty, and if you click THIS LINK it will pop you over to Southern Living house plans where you will see images of this home built as well as a few of the interior! It helps so much to visualize!

I already mentioned the wrap around porch, but it’s just so spectacular it’s worth mentioning again! As you enter the Southern Gothic house plan, you step into a foyer that opens into a dining room. Which is lovely, if you like a formal dining room (and who doesn’t?) – but, if you are like me and wouldn’t use a dining room often, I would use it as an office. Maybe put some French doors to close off for privacy if needed. Can you imagine what a spectacular office that could be? You may opt for barn doors if you aren’t organized, hehe…
The kitchen opens to a family room and eating area – it also has a wonderful bar at the island to eat (or hang out) at. This plan is so useable! So far I can use every bit of it! I love the master suite downstairs, the fabulous walk in closet and towards the garage side of the home, the nice mud room, laundry room and pantry. Woohoo! I love a pantry! If you don’t opt to make the upstairs of the garage a guest suite, it’s perfect for a studio, exercise equipment or just for storage!
Did you notice that the fireplace on the back porch? Nothing like cuddling up with a book and a coffee next to the fire. Oh, I can visualize myself in this plan in a skinny minute!
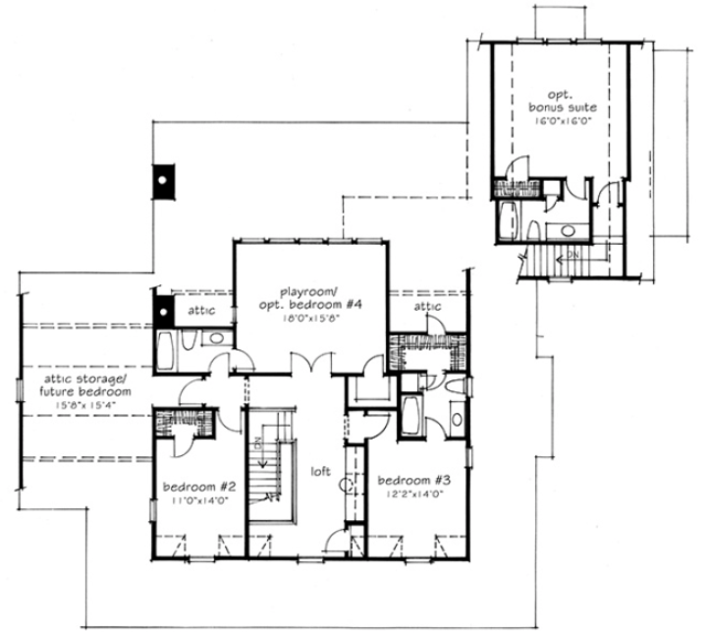
Upstairs there are two additional bedrooms, an optional bedroom or playroom and another possible “future” bedroom – or it can be used as attic storage.
The optional guest suite is an open room with a bathroom and closet. Wouldn’t you love to visit someone with a guest suite so nice? Yep, me too!
L. Mitch Ginn & Assoc.
Website | Facebook | Instagram | About
Catch you back here tomorrow!
All images via mitchginn.com, used with permission…
Images are not for construction or reproduction, they are property of the design firm.
