282 Bothy Lane by Our Town Plans
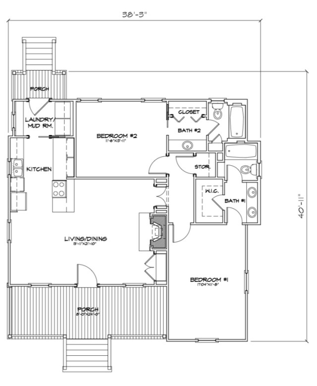
This is the 282 Bothy Lane house plan by Our Town Plans. This plan is 1,150 square feet with 2 bedrooms and 2 bathrooms. *Be sure to look at the real life images (via the house plan link above) to get a feel for how this home could be built. I love the color they chose on this house, and they screened in the porch (in the image). It looks just like an old home that you would pass on a Sunday drive. So sweet. Absolute perfection! This house is so charming!
282 Bothy Lane House Plan by Our Town Plans282 Bothy Lane has a great layout, a nice front porch, laundry/mud room. This open concept plan makes you feel like you are living in a larger space… you don’t feel confined to a small space when you can set sight in the distance. Two bedrooms each with their own bathrooms/closets, etc. It’s nice how the bedrooms are divided by the closet/bathrooms. Private, and very, very functional! This is a sweet plan with oodles of charm!
Our Town Plans
Website | Facebook | Instagram
Catch you back here tomorrow!
All images via OurTownPlans.com, used with permission…
Images are not for construction or reproduction, they are property of the design firm.
Like this little plan!
LikeLiked by 1 person
It’s charming, isn’t it? ❤️
LikeLike
Our Town Plans always hits it out of the park with their wonderful cottages – charming, and not an inch of wasted space. Love them!
LikeLiked by 1 person
So true, they knock it out of the park every single time! :)
LikeLike