This is a sharp plan, isn’t it? Who doesn’t need a side screened porch, a fabulous utility room, even a pantry in addition to being an open plan. Check it out…
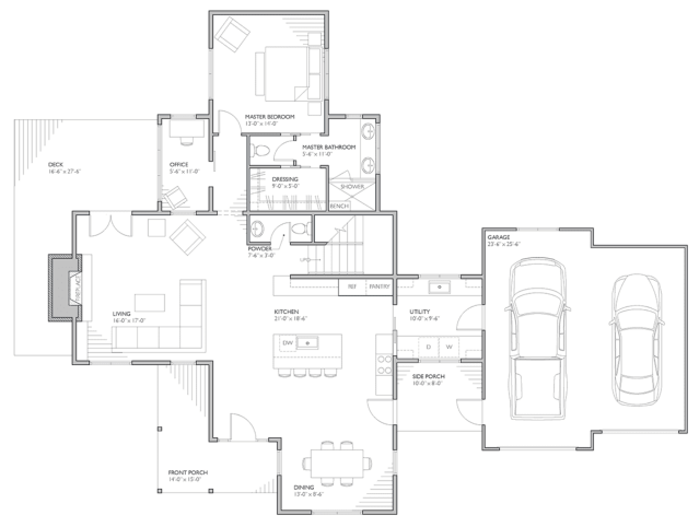
This is the Normande house plan by Perch Plans. This plan is 2,702 square feet with 4 bedrooms and 3.5 bathrooms. This home is 60′ deep and 75′ wide. When you look at the house plan you’ll see what I mean. There is so much room in this plan. The Normande has sharp lines – I love it!
Nice front porch with easy accessibility. This home has an open dining, kitchen, living area with a master suite tucked into the back of the house. The kitchen is nicely equipped with a pantry and fabulous island. You can walk through the kitchen into the utility area with washer/dryer/sink – you can also gain entry from the 2 car garage from this space. A powder room is tucked around the corner near the staircase.
As you come up the stairs there is a bedroom/bathroom on one side of the steps and 2 bedrooms that share a bathroom on the other side, with a small sitting area. Perfect!
Bonus: If you really like this plan but see something that you wish was different, Perch Plans will work with you to make it your dream home. Every single house plan can be customized to meet your needs. Just ask them!
Perch Plans
Website | Facebook | Instagram | FAQ
ABOUT
After years of fielding requests to purchase designs from custom home projects, Tim Brown Architecture launched Perch Plans in 2016. Inspired by the firm’s sought-after custom projects, Perch is a boutique shopping experience that makes Tim Brown Architecture’s design sensibility and 15+ years of experience in high-end residential architecture available to more homeowners. But our goal isn’t just to sell plans to customers – We want to develop a lasting client relationship with you. The distinction we make between ‘customer’ and ‘client’ is significant. It speaks to our level of commitment and standards for service. And it’s just one of many facets that make the Perch Plans experience truly unparalleled.Catch you back here tomorrow!
All images via PerchPlans.com, used with permission…
Images are not for construction or reproduction, they are property of the design firm.
Links updated January 10, 2025


