This is a beautiful plan by Lake & Land Studio. There are some creative minds at work no doubt.
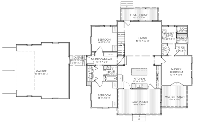
This is the Leland Residence house plan by Lake & Land Studio. This plan is 1,711 square feet with 3 bedrooms (with a 4th possible!) and 2 bathrooms! Both the front and back of this plan have wonderful porches! I think screening the front porch gives it that “back in the day” feel. I love it, I also love how there is a garage but you don’t see the doors, it looks like part of the house (side entry garage). Lake & Land is good about showing more renderings of this plan (and others!) – and if there is anything about the plan that doesn’t quite work, you can contact them to make this your forever home!
You enter the Leland Residence house plan via the wonderful front porch into the open living/kitchen area. Two bedrooms and a shared bathroom on one side of this plan and the other side of this home boasts the master bedroom, separate closets, master bathroom and a wait for it… MASTER PORCH! What a dream!
I love covered breezeways, and this house has one that takes you from the garage to the house. Like I mentioned earlier, this garage is entered from the side, which saves you from looking at garage doors. Very classy!
The second floor of this plan is where there could be an optional 4th bedroom. This is a loft space that could be used for so many things! Endless possibilities!!
Lake and Land Studio, LLC
Website | Leland Plan | More Details
Catch you back here tomorrow!
All images via LakeandLandStudio.com, used with permission…
Images are not for construction or reproduction, they are property of the design firm.
Links updated January 10, 2025


