
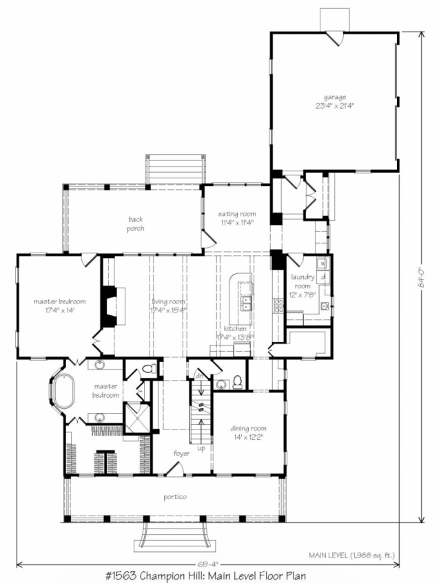
This is the Champion Hill House Plan by L. Mitchell Ginn & Associates. This plan is 3,141 square feet with 4 bedrooms and 3.5 bathrooms. There is so much to love about this plan. I love the dormers, the layout is perfect and the history behind the name is heartwarming – don’t miss reading about it via the Champion Hill link above!

This is a fabulous open (but not too open house plan). I like it to be open, but I also like to be closed off some. This plan gives you options. The kitchen, living and eating room area of the kitchen are open. The dining room is located on the front of the house. If by chance you aren’t one to use a dining room, it would make a great office as well!
You’ll see off the kitchen is a fabulous pantry, like a walk in closet! #dreamsdocometrue! Nearby is a laundry room, as well as a nice mudroom close to the back door/garage.
The master bedroom and bathroom are magnificent and private with such a large closet #whocouldntbehappyhere?

The upstairs has three bedrooms, one with a private bath and the other two that each have their own sinks, but share the other facilities… So smart!
L. Mitchell Ginn & Assoc.
Website | Facebook | Instagram | About
Catch you back here tomorrow!
All images via MitchGinn.com, used with permission…
Images are not for construction or reproduction, they are property of the design firm.