
Quite a stunning home, isn’t it? An elevated design adds to the grandness. Fabulous design, stunning space – Just wait until you see the actual house plan… WOW! Love the doors in this photo!
🌸 NOTE: Images will be returning to email notifications soon – WordPress is working on it!

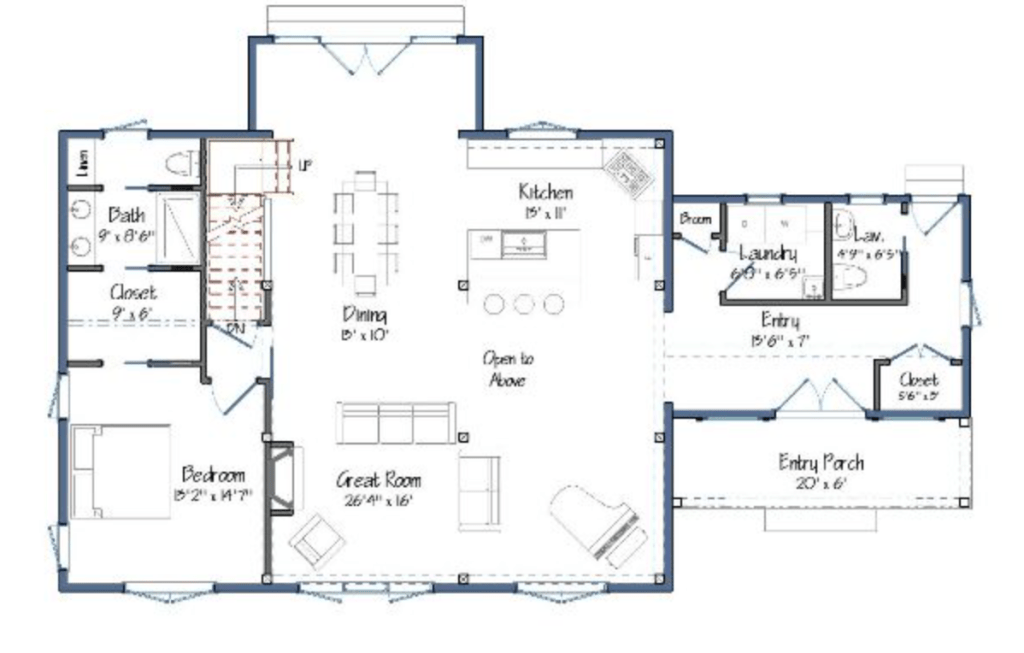
This is the Downing barn home house plan by Yankee Barn Homes – this plan is 1,870 square feet with 1-2 bedrooms and 2.5 bathrooms – there are so many layout options with this plan (coming from someone who changes their living/dining spaces on occasion). I am not one to leave everything as is forever. I am always thinking about what could be moved and how it would work… I’ve been this since I was a kid. I spent a lot of time changing my bedroom around. Haha, that’s normal, right?
The open-to-the-ceiling living space in great room, dining and kitchen must feel massive with all the openness. Can you imagine?

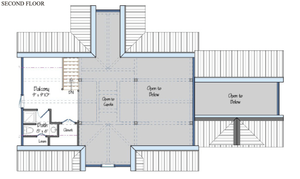
The upstairs has a balcony area which could easily be used as another living or guest space – Bathroom, Linen closet and regular closet – nice to have storage! I love every aspect of this plan! As always, Yankee Barn Homes will work with you to make this the house plan of your dreams!
Check out more info on Yankee Barn Homes, and if you like this plan I think you will love the blog post (link below “Article…”) about this plan!
Yankee Barn Homes
Website | Facebook | Instagram | Article about The Downing
✍️ Until next time…
All images via YankeeBarnHomes.com, used with permission…
Photograph of this image is by Jason Bleecher