
I love everything about this house plan – the porch, roof, windows, the overall setting… it’s fabulous! Just wait until you see inside.. (and yes, there are photos!) #jawdrop This house plan has some fabulous space! #dreaming
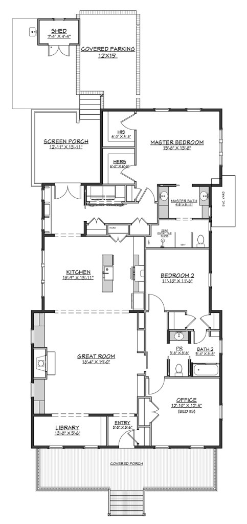
This is the Loudon house plan (SL 2054) designed by Bridgewater Architectural Design for Southern Living – this is the 2020 Southern Living Showcase Home and is located in Habersham (South Carolina). This plan is 2,027 square feet with 3 bedrooms and 2.5 bathrooms.

Fabulous, right? A wonderful front porch – a nice size entry with closet, a library on the front of the house – I can’t tell you how much I love this idea! The other side in the front is an office area or a 3rd bedroom – I love the options that this presents! A great room that isn’t in full view of the front door, which is a great idea – that opens to the kitchen. Another bedroom, bathroom, master suite (with TWO closets!!), a washer/dryer and mudroom area, a screened porch, and covered parking.
What??!! This is amazing! Click HERE to see the plan (and more images!) on the Southern Living website!
✍️ Until next time…
All images via Houseplans.southernliving.com!
Love this plan, ready to move to habersham!
LikeLiked by 1 person
Seriously! 😉😘
LikeLike