
Tidewater Cottage (SL-998) An Exclusive Design for Southern Living by LRK, Inc.
For today’s plan, I was searching for something a little edgier, with a more modern flare to it… and look what I found! The Tidewater Cottage (Southern Living Plan SL-998) is 1,710 square feet. It’s got that open plan that we love (and it’s not for everyone, but it fits our lifestyle quite well). It would be neat to build this house out in the country or on the water… I’m not picky, I would take either one! I LOVE all those windows… especially if you had spectacular trees as your view! Perhaps on the edge of a forest.
Here’s a blip about the Tidewater Cottage from the Southern Living House Plans:
Our Tidewater Retreat (SL-998) is a 1,710-square-foot escape that maximizes indoor/outdoor living. After a day at the beach, stow gear in the storage room and wash off sand in a bathroom located on the ground floor. On the main level, the kitchen flows into the dining room and living room and two bedrooms are quarters for friends and family. Walls of windows look out to the wrap-around porch, a perfect place to enjoy ocean breezes and sunsets over the water. Upstairs await the master bedroom and a bunk room. A third-floor loft offers a panoramic view.
The ground floor… great for living at the beach, a bathroom so you don’t have to track back through the house… a shower to rinse off… Hmmm… not sure I would want to clean all that. Personally, maybe a toilet, tiny sink and make the rest storage…
Rinse off with the garden hose ;)

The first floor has everything you could possibly think of… two small bedrooms down are nice, in case one day it’s difficult to climb the stairs… hmmm… although you would still need an elevator to get you to the first floor I suppose. I’m not a big fan of caddied walls… I would see if that one wall could be straight…

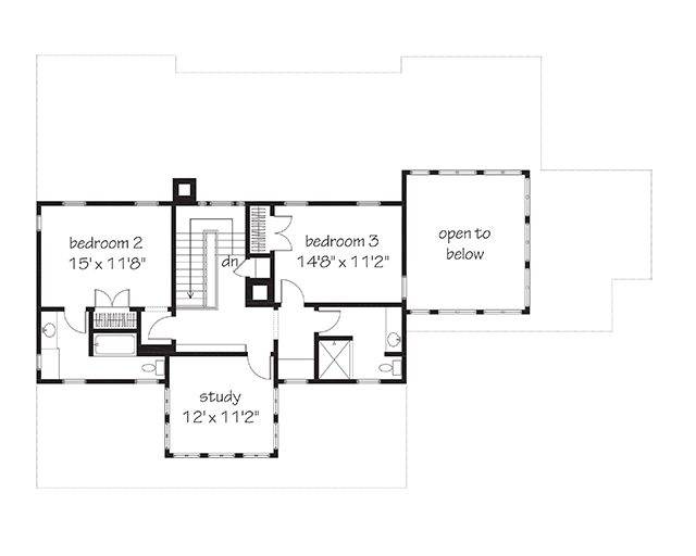
The second floor… the Master Suite… matter-of-fact… I might even make the two bedroom downstairs into the master bedroom… I would put the toilet and sink where the bathtub is, and make a doorway to the bedroom, closing off the hallway door. I would put a little tiny powder room (toilet/sink) under the steps. I would let guests have the upstairs bedroom. The bunk room could either hold another bed, or be used for storage. Storage. Wow… that would be great!

WHAT A GREAT ARTIST’S STUDIO!! Buns of steel from going up and down three flights of stairs, an added bonus! Wow!!

Catch you back here tomorrow!
All images: http://houseplans.southernliving.com/