
Little Diamond House Plan by BrightBuilt Homes
Stunning homes! Good design, smart use of space, well built and so classy. The Little Diamond is a very cool plan that has most of the living on the main level. There are many options for this plan which can increase space as well as bedrooms/bathrooms making this the perfect home for your needs. I love the covered area to the garage. Plentiful windows, beautiful garage doors and LOVE the front door as well!

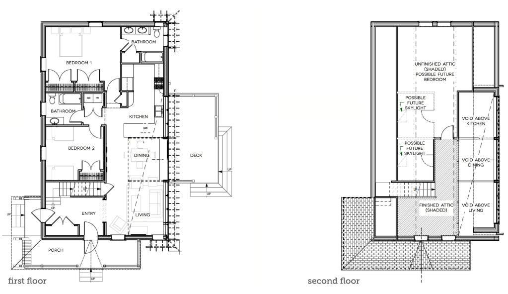
This is the Little Diamond House plan by BrightBuilt Homes. This plan ranges in size from 1,515-1,960 square feet with 2-3 bedrooms and 2-3 bathrooms. #youhaveoptions!
BrightBuilt Homes are built off-site in a climate controlled area. The turnaround time for a home sounds like a dream! From the BrightBuilt website: “Little Diamond is capable of producing as much energy as it will consume in one year, achieving Net Zero Energy status”. Wow. Pretty impressive!
What a great entry space/closet! Bedroom 1 with its own bathroom and closets. Bedroom 2 with access to the bathroom from the bedroom or from the hallway. A wonderful kitchen, dining, living space and a great side deck. I love to have a kitchen sink in front of windows. There is so much light flooding into the kitchen, which is huge!
Be sure to visit the brightbuilthomes.com website, click on the links in this post to see more and when you are on their website you will see interior images and descriptions which really help a lot! Plus, you have choices! So many options to make it exactly what you want. What’s not to love?
So many wonderful plans, I look forward to featuring more in the future!
BrightBuilt Homes
Website | Facebook | Instagram | This Plan
✍️ Until next time…