Can you imagine? A stunning setting and a beautiful home – it’s what dreams are made of, right? (Not to mention there are two options for configuration of the upstairs on this plan giving you added flexibility). This is a beautiful plan that takes advantage of the stunning views that surround it. I think I would paint this house black. Seriously, it would fade into the setting. Can you imagine how beautiful it would be in the evening with the warm glow of light coming through the windows. I may even upsize the windows a bit, depending where I lived at the time. I love that Yankee can modify a plan to make it yours!
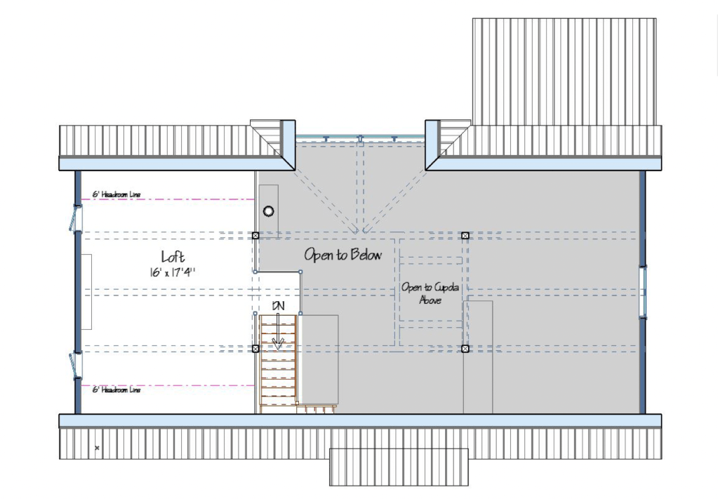
This is the Cabot Barn Home by Yankee Barn Homes. This plan is 2,004 square feet with 1-2 bedrooms and 1.5 bathrooms. The master is located downstairs and upstairs is a loft area. It’s a good looking plan!
The master is located on the left side of the house as you walk in. You are greeted by a wide entryway with a closet on one side and the staircase on the other. There is a half bath just inside the entry. You then walk into the great room which is open to the dining and kitchen area. The great room has a stunning fireplace and gorgeous windows where you can take in the sights around you. The dining area is near the sunroom (how nice!) and the kitchen (complete with pantry!) Love all the prep space! Note the wonderful deck in the back! A lot of living space both inside and out.
This plan has an upstairs loft, which I like. Especially if you don’t need a lot of extra space. However, if you do (as I mentioned above) there is another variation to this plan that has two bedrooms upstairs with a shared bathroom! You can find that plan HERE.
Yankee Barn Homes
Website | Facebook | Instagram | This Plan
👩💻 Until next time…


