
Pretty amazing, isn’t it? Believe it or not this is a smaller plan (not tiny, but not massive) that is designed to be open and spacious, making it feel like a much larger house. This is a one floor plan with a few cool bonuses… This would be the lakeside view – stunning, right? The front is very nice, but this is where I would be most of the time.
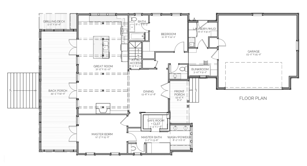
This is the Poplarville house plan by Lake and Land Studio. This plan is 1,647 square feet with 2 bedrooms and 2.5 bathrooms. I love the large screened porch off the back of this house. I love how this home is designed so well you don’t need a ton of square footage to have the space you need. However, we all have different wants and needs, so if you envision a change to make a plan better work for you be sure to contact Lake and Land Studio, they can do it!
Two very cool things I noticed. Stairs to access the attic WHICH I LOVE! We live in an older home and have a pull down staircase. If we had a little more room, having a dedicated staircase to the attic space would be ideal AND you could use those stairs for exercising as well, ha ha… the other thing that Lake and Land does with a lot of their plans – they incorporate a safe room. If you look you’ll see the master closet is a safe room + a closet. A safe room is the perfect spot to plant yourself during a severe storm, hurricane, tornado, etc. Brilliant idea and thinking ahead with design is always key for staying on top, right?

This is a great plan, the master suite is off to the left and another bedroom/bathroom is off to the right, with a laundry area/mud room and across from it a bunk room. There is a powder room which makes it convenient. A nice front porch which is welcoming and large screened back porch which is where I would live. How nice to have airflow on nice days, into the great room/kitchen/dining areas. Check out the links below. “This Plan” has images and “More Details” has, well… more details!
Enjoy!
Lake and Land Studio
Website | Facebook | Instagram | This Plan | More Details
🏠 I work with architects/designers from all over, so if you’re interested in one of their plans, please let them know that you saw it here on artfoodhome.com!
Until next time…