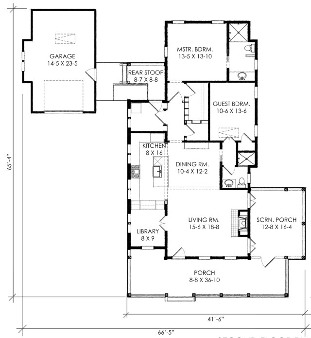
This is the Woodward house plan (TNH SC 54) by Moser Design Group! This plan is 1,422 square feet with 2 bedrooms and 2 bathrooms, all conveniently located on one floor. I love the cottage look to this plan and OH! The side screened porch – what a treasure! You have the large front porch for when the weather is cooler (and less bugs) and the screened porch when you need some shade or some privacy to get into the book that you’re reading, right?! This house has nice lines all the way around, click on the link to see the other views!
The layout of this plan is wonderful, you step from the front porch into the living room. To the left is a library, perfect for a home office. There are also two sets of French doors that lead to the screened porch. Can you imagine when the weather is wonderful? OPEN those doors and let the fresh air in! The dining room is open to the kitchen, and what a fabulous kitchen it is, it’s the hub of the household.
There is a guest bedroom with bathroom and a wonderful master bedroom, bathroom and closet! The garage is just steps from the back door and what charm it has! Not your typical garage by any means!
I would say this is yet another beautiful plan by Moser Design Group!
Moser Design Group
Website | Facebook | Instagram | Plan
Catch you back here tomorrow!


Love the plan!
LikeLiked by 1 person
Agree!
LikeLike
Wow
LikeLike
My DREAM Home
LikeLiked by 1 person
I have to agree Lillie. Moser created a stunning, well thought out plan with such a nice layout and the best features! It really is a dream!
LikeLike