House Plan Thursday… and another great Allison Ramsey plan is unveiled! Wouldn’t this be a sweet cottage set well, just about anywhere? This is the front view. I love porches, I think they make a house a home. Porches are a nice gathering place where you can spend time enjoying the great outdoors. #forestbathing This plan has a screened and unscreened porch. So perfect, I would use both!
This is the Bermuda Bluff house plan (16366) by Allison Ramsey Architects. This plan is 2,841 square feet with 4 bedrooms and 3 bathrooms. (Links below)
Check out the images via the links below – you’ll love the back view of the Bermuda Bluff just as much as the front – the screened porch is fabulous! What a nice spot to take a siesta after working in the yard! Note, there are two Bermuda Bluff Cottages. One is a smaller house plan (different floor plan), so if interested this is the link, it’s available via Southern Living!
Fabulous house plan, right? You enter this plan via the lovely front porch and into the entry way that can lead you into a mudroom/utility room on one side or a dining room (I would use it as a study) on the other. Keep walking forward and you have your master suite on the left, after you pass a powder room. TWO walk in closets (✨swoon!✨) in the master suite.
A fabulous great room leaves the person who is doing the cooking (or cleaning!) feel included. Fabulous kitchen and ohmygoodness, the pantry. We’re talking dreams coming true! On a chilly evening you might find yourself on your screened back porch with the fireplace keeping you toasty warm. #lifegoals
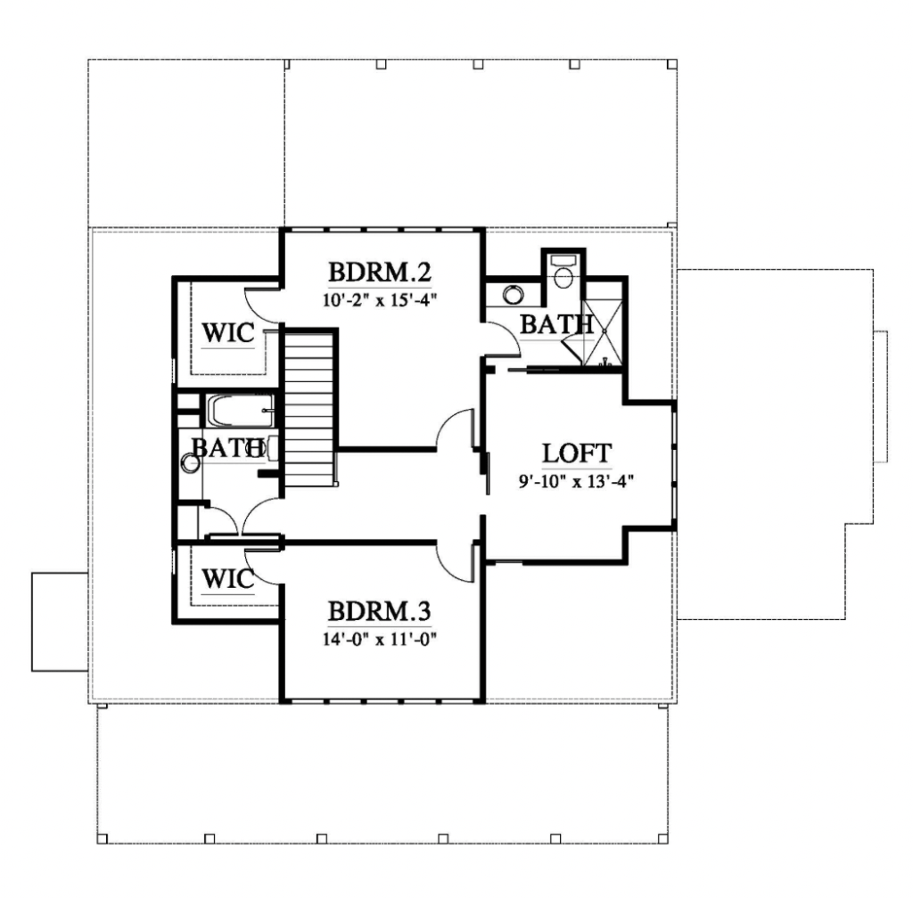
Upstairs you’ll find two bedrooms each with fabulous closet space, two bathrooms and a loft area. Absolute perfection! Information on this plan can be found below. The house plan link also shows interior and exterior images of this plan as it was built. Beautiful!
Allison Ramsey Architects
Allison Ramsey (ARA) Website | HOUSE PLAN
Until next time!
All images via allisonramseyarchitect.com, used with permission…
Images are not for construction or reproduction, they are property of the design firm.
🏠 I work with architects/designers from all over, so if you’re interested in one of their plans, please let them know that you saw it here on artfoodhome.com!
Until next time…


