If this is the front of a beautiful home on the water, can you imagine the water side? It’s STUNNING! So many areas to relax and enjoy the boats whirring past. Dreamy with beautiful light filled rooms. Let’s check it out…
This is the Dawson Residence house plan by Lake and Land Studio. This plan is 2,312 square feet with 3 bedrooms, a bunk room and 4 bathrooms. Pretty sweet, isn’t it?
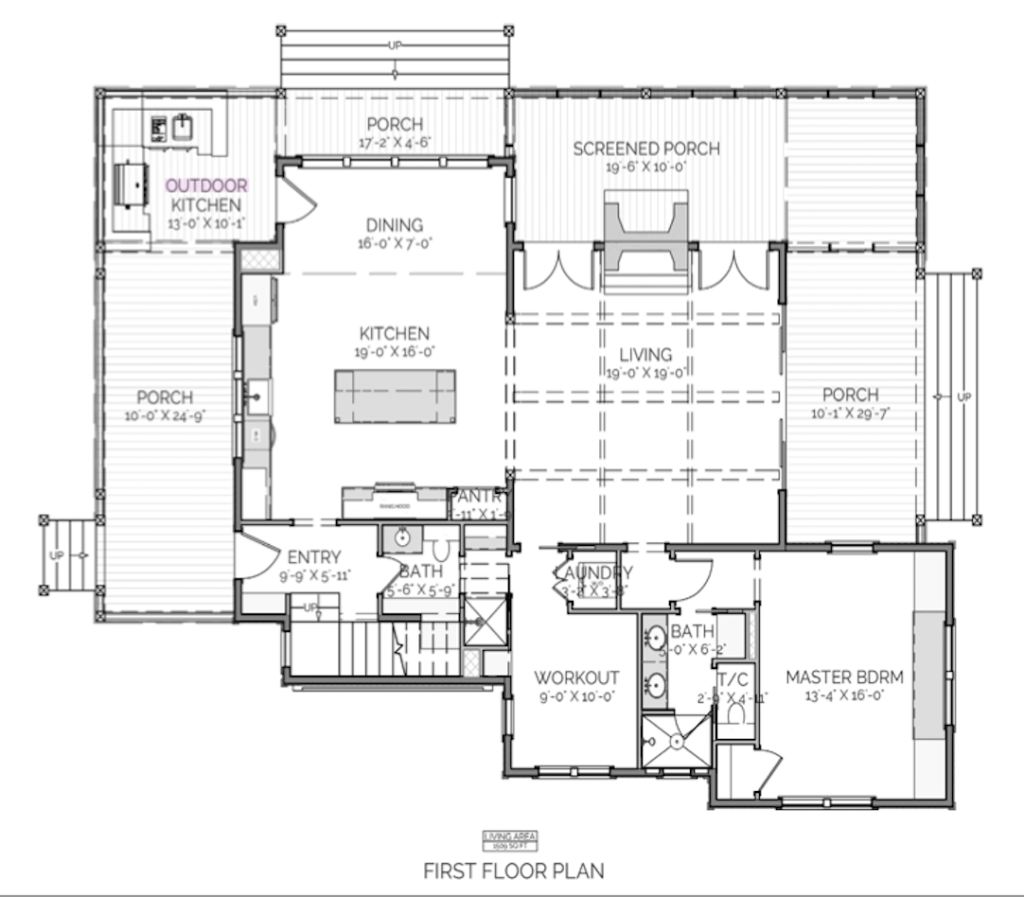
You enter this plan from the front porch (on the left in image above) into an entry space, staircase and powder room. Next, you head into the gorgeous kitchen that looks into the dining room, the porch beyond and your water view (if you have one). The island is large and functional but beautiful. I love how they tucked the two barstools under each end of the island. #brilliant Note the pantry (I love a pantry) – happy dance!! The kitchen is open to the large living space and screened porch beyond. The double sided fireplace is a nice treat, enabling you to enjoy your water view from the porch even on a chilly day. On the other side of this plan you’ll find a workout room, laundry area and master suite.
Upstairs you’ll find two bedrooms with closets, a bunk room and two bathrooms with easy access. One heck of a plan, right?
Keep in mind, Lake and Land is there for you should you see something you wish was different or moved or whatever it may be. They can make your dreams become a reality!
Lake and Land Studio
Website | Facebook | Instagram | This Plan
🏠 I work with architects/designers from all over. If you’re interested in one of their plans, please let them know that you saw it here on artfoodhome.com!!
Until next time…


