House Plan: Moser Design Group – TNH LC 11A (Coastal Living 2002 Cottage of the Year!)

TNH LC 11A by Moser Design Group http://www.moserdesigngroup.com/newpdfs/lc11a1.pdf
TNH LC 11A by Moser Design Group http://www.moserdesigngroup.com/newpdfs/lc11a1.pdf

Hey! A special note: My blog looks a bit different, and you may see some ads appear. Let me know what you think! Also, the name of my blog now matches the address http://www.artfoodhome.com I just moved my name underneath it where art. food. home. used to be… 

One more note… to comment, just click on this icon (its located to the right of the title of the post): Comment

TNH LC 11A by Moser Design Group.  What a cool plan this is! This is the plan for those of you who need more room to spread out. I love the look of this house. Many times plans can be wonderful on the inside, but lacking on the outside and vice versa – but Moser has a way of harmonizing and making them gorgeous on the outside and well thought out on the inside!

This plan is 2,717 square feet with 4 bedrooms and 3.5 bathrooms.

Main Floor - TNH LC 11A by Moser Design Group http://www.moserdesigngroup.com/newpdfs/lc11a1.pdf
Main Floor – TNH LC 11A by Moser Design Group

The main floor has a master suite/master bathroom and a porch all by itself, linked by a vestibule to the main living quarters. In the main area, you enter from the front porch into a living/dining area that looks into the kitchen. All open and wonderful in every way. Then… (and this is the part I love, love, love), there is a guest cottage! The guest cottage is linked to the main living area via a screened porch. The guest cottage has  it’s own bathroom, kitchenette area and living area downstairs….

2nd Floor - Main House - TNH LC 11A by Moser Design Group http://www.moserdesigngroup.com/newpdfs/lc11a1.pdf
2nd Floor – Main House – TNH LC 11A by Moser Design Group

The main house has two bedrooms, a bathroom and a walk in closet upstairs!

2nd Floor Guest Cottage - TNH LC 11A by Moser Design Group http://www.moserdesigngroup.com/newpdfs/lc11a1.pdf
2nd Floor Guest Cottage – TNH LC 11A by Moser Design Group

The guest cottage has an open loft upstairs for sleeping, painting, exercising, an office space, etc… the sky is the limit! Check out their plans, you’ll see they are quite wonderful!

All images via MoserDesignGroup.com

Catch you back here tomorrow!

House Plan: 137-21 – from Houseplans.com

Plan 137-21 from HousePlans.com
Plan 137-21 from HousePlans.com

Houseplans.com 137-21. Plan 137-21 has 1,643 square feet with 3 bedrooms and 2 bathrooms. I’m still stuck in my smaller house plans which I just adore, but I promise I’ll be posting some larger homes soon!

HP 137-21 Houseplans.com first

I always like to play architect… or at least like to figure ways I would change plans to make them work for us best… I really like this plan. I would use bedroom 3 as a study giving space and privacy to a guest in bedroom 2. We don’t need a whirlpool tub in the master bath or two sinks, so I would see if there would be a way to rearrange the master bath to accommodate a washer and dryer, then make the existing space for a washer/dryer a coat closet and shelves for storage of items that you just don’t have somewhere to store. I would then take the closet in the hallway beside the pantry in the kitchen and turn it all into storage from the kitchen side! Whew! Probably not cheap all those changes, but if it makes your house more functional in the long run it will be worth it!

All images via Houseplans.com, used with permission…

Catch you back here tomorrow!

House Plan: 900-7 from Houseplans.com!

Plan 900-7 by C3 Studio - From Houseplans.com
Plan 900-7 by C3 Studio – From Houseplans.com

900-7 is the name of this house plan, designed by C3 Studio and available via Houseplans.com! If you don’t need a lot of extra rooms that you won’t use, this is the plan for you! This plan is 1,421 square feet with 3 bedrooms and 2 bathrooms. One bedroom can be used as a study or office area, how perfect is that? I love the sweet character of this home. I think the stone work really makes it! The windows are fabulous too! The downstairs windows (6 over 1) look so nice on this plan!

House Plan 900-7 designed by C3 Studio - available via Houseplans.com
House Plan 900-7 designed by C3 Studio – available via Houseplans.com

You walk onto a covered porch, which is so nice when its raining, then into the great room, where you can see through to the kitchen. I love that the kitchen sink has a window. Mandatory in my eyes ;) Washing dishes isn’t so bad when you have something to look at! The two front bedrooms/office/study spaces share a bathroom, then beyond the kitchen is the laundry, and onto the master bedroom, bathroom and closet.

There is another covered porch off the back of the house that leads to the garage. Nice, hmmmm? Another great plan to keep in mind when the time comes!

All images via Housplans.com – check them out!

Catch you back here tomorrow!

House Plan: Coosaw River Cottage (C0030) by Allison Ramsey Architects!

Coosaw River Cottage (C0030) by Allison Ramsey Architects
Coosaw River Cottage (C0030) by Allison Ramsey Architects

Coosaw River Cottage plan (C0030) by Allison Ramsey Architects. This plan is 1,705 square feet with 3 bedrooms and 2.5 bathrooms. Quite the charming cottage plan isn’t it? It’s got charm and character as well as a lovely front porch!

Coosaw River Cottage (C0030) by Allison Ramsey Architects - MAIN FLOOR
Coosaw River Cottage (C0030) by Allison Ramsey ArchitectsMAIN FLOOR

Here you see the front porch, and the back screened porch, allowing the gentle breeze to flow into your bedroom in the cooler months. What could be better? I love the layout of this plan with the open living and dining spaces, a very functional kitchen and breakfast area as well as a master bedroom/bathroom downstairs.

Coosaw River Cottage (C0030) by Allison Ramsey Architects - SECOND FLOOR
Coosaw River Cottage (C0030) by Allison Ramsey Architects – SECOND FLOOR

The upstairs is perfect as it is! Lots of room to have your own space! As well as storage, office, treadmill or studio space. This was very well thought out! Usually there is something I would change here or there out of personal preference, but this one pretty much hits the nail on the head for me!

All images via AllisonRamseyArchitects.com, used with permission…

Catch you back here tomorrow!

House Plan: Four Gables (SL-1832) a Southern Living Plan!

Four Gables SL 1832 a Southern Living Plan designed by Mitchell Ginn
Four Gables SL 1832 a Southern Living Plan designed by Mitchell Ginn

This is the Four Gables (SL 1832) plan from Southern Living House Plans, designed by Mitchell Ginn. Four Gables is a fabulous plan with 2,341 square feet, 4 bedrooms and 3.5 bathrooms. It looks like a house that has been around since the days of charm and character. Nice porches on both the front and the back of the house. What a treat!

 

 

Four Gables SL 1832 a Southern Living Plan designed by Mitchell Ginn
Four Gables SL 1832 a Southern Living Plan designed by Mitchell Ginn

This plan would work well for us. I love the kitchen, eating and living… we don’t need a big dining room, so this would be functional and used often. I like when homes are designed to be fully used. I have to say we use every room in our house. It works for us.

Four Gables SL 1832 a Southern Living Plan designed by Mitchell Ginn
Four Gables SL 1832 a Southern Living Plan designed by Mitchell Ginn

The upstairs of this plan is fabulous! Two or three bedrooms, a few bathrooms and a loft area. For us I would keep two bedrooms, then use one area for office, studio or treadmill – maybe only one bathroom and a small loft area. Perfect!

All images via Houseplans.SouthernLiving.com

Catch you back here tomorrow!

House Plan: Sparta SL1810 – A Southern Living Plan by Lew Oliver!

Sparta SL1810 by Southern Living House Plans - Lew Oliver, Architect
Sparta SL1810 by Southern Living House Plans – Lew Oliver, Architect

Isn’t this a sharp house? The exterior is exquisite. I love that wonderful porch, especially with no spindles! The doors and windows are fabulous. Those small windows at the top just add so much!

This is the Sparta (SL1810) house plan. It has 1,824 square feet with 3 bedrooms and 3 bathrooms. This plan was designed by Lew Oliver and is available through Southern Living!

Sparta SL1810 by Southern Living House Plans - Lew Oliver, Architect
Sparta SL1810 by Southern Living House Plans – Lew Oliver, Architect

I really like the layout of this plan. Personally, I would make that front bedroom a guest room with it’s private bath, and keep the master bedroom in the back, and use “bedroom 2” as a study, so it’s tucked away in a quiet place which also gives your guests their privacy! I would love to hear from any of you who have a closet off of your bathroom… I wonder if it would get humid in the closet that way? Or is it fine? Dining, kitchen, living all open which I love! That is one sweet screened porch on the side as well! What a treat!

Catch you back here tomorrow!

House Plan: Chapin Cottage (C0532) by Allison Ramsey Architects!

Chapin Cottage (C0532) by Allison Ramsey Architects
Chapin Cottage by Allison Ramsey Architects

Such style! I think this house is has very sharp lines, and definitely fits in the coastal landscape of the Charleston area (and far beyond!) I wouldn’t have a problem building this house anywhere! Great porches, one open and the other is screened. I love the windows on the second floor. It reminds me of a cool old cottage we rented in Maine!

Continue reading “House Plan: Chapin Cottage (C0532) by Allison Ramsey Architects!”

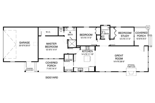
House Plan: A country farmhouse plan (888-7) from Houseplans.com!

A country farmhouse plan (888-7) via Houseplans.com
A country farmhouse plan (888-7) via Houseplans.com

This is an modern take (to me) of a country farmhouse type plan, I found this house plan on Houseplans.com – it’s very cool, I love the layout, the wide porches

This Signature Plan 888-7, designed by Nicholas Lee, is 2,168 square feet with 3 bedrooms and 2.5 bathrooms. The layout of the first floor is nice, it’s open, and most importantly it offers wonderful deep overhangs for the porches which help keep the house cool in the hot months.

 

A country farmhouse plan (888-7) via Houseplans.com
FIRST FLOOR – A country farmhouse plan (888-7) via Houseplans.com

It’s nice how this floor plan separates the guest rooms from the master bedroom. On the left hand side you have the office, master bedroom and bathroom and on the right hand side you have the guest rooms which share a bathroom, and in the center of the house you have kitchen, dining, great room. For Fred and I that would be more than plenty, we would do without the upstairs…

A country farmhouse plan (888-7) via Houseplans.com
SECOND FLOOR – A country farmhouse plan (888-7) via Houseplans.com

The loft is accessed by a ladder from the main floor. You could always use that space as storage (much like you would use an attic with a pull down staircase). If the ladder was in the way or you didn’t want to draw attention to it, you could move it when not needed. A climate controlled attic… at least in the south that would be really nice! I remember the first time I put red and white taper candles in the Christmas decoration box. When I pulled it down the next year the candles had completely melted. Many of our good ornaments ruined (not by the candle wax, but from the heat).

What do you think of this plan? Let me know!

ALL IMAGES VIA HOUSEPLANS.COM – used with permission…

Catch you back here tomorrow!

House Plan: Guest Cottage (TNH-GC-02A) Also known as Katrina Cottage KC697!

Guest Cottage TNH-GC-02A by Moser Design Group
Guest Cottage TNH-GC-02A by Moser Design Group

Let me start by saying… if this post looks familiar to some of you, you aren’t crazy. I write my posts ahead of time and schedule them to publish. I was using the software’s new updated version which had a bug that allowed the scheduled post to publish immediately. Sigh… Did you have a deja vu moment just now? ha ha…

Moser Design Group. One of my favorites. This Guest Cottage (TNH-GC-02A) may be small but it packs a powerful punch in terms of livability! If you use this as a guest cottage your guests may stay indefinitely! I think this would be a great house for a single person without a lot of “stuff” that wants to live on a smaller scale. I like that philosophy and you see more and more tiny houses popping up!

Guest Cottage TNH-GC-02A by Moser Design Group
Guest Cottage TNH-GC-02A by Moser Design Group

I think I would screen the entry porch, it not only allows you to open the front door and windows across the front, it also gives you a little privacy since your living area is on the front of the house. This plan has a nice and efficient size bedroom with a bathroom right across the hallway, as well as a utility room!

And… this small house/guest cottage has stairs that lead to a loft, which could always be a spare bedroom, storage space, office, etc. I love endless possibilities!

Guest Cottage TNH-GC-02A by Moser Design Group
Guest Cottage TNH-GC-02A by Moser Design Group

Check out the Moser Design Group website for more information on this Guest Cottage (TNH-GC-02A) by Moser Design Group – it is also know as KC-697… do you remember seeing the Katrina Cottage plans that were available through Lowe’s? This is one of those plans. I loved those from the moment they appeared on the market! It doesn’t appear that Lowe’s is still in the house plan business, but lucky for you… Moser Design Group is!

All images via MoserDesignGroup.com – used with permission…

Catch you back here tomorrow!

House Plan: The Poet’s Cottage (NC0022) by Allison Ramsey Architects!

Poet's Cottage (NC0022) by Allison Ramsey Architects!
Poet’s Cottage (NC0022) by Allison Ramsey Architects!

Sweet cottage isn’t it? This is the Poet’s Cottage (NC0022) designed by Allison Ramsey Architects out of Beaufort, South Carolina. They have quite a reputation for excellence. It shows in each and every one of their house plans. Just look at the character in this house. I love the roof lines! This plan is 1,768 square feet with 3 bedrooms and 2.5 bathrooms. This is a plan that will appeal to the masses!

Poet's Cottage (NC0022) by Allison Ramsey Architects! Main Floor
Poet’s Cottage (NC0022) by Allison Ramsey Architects!
Main Floor

So many wonderful features… a front porch. Ahhhh, who wouldn’t love that? Then you walk into a generous size living room complete with a fireplace, from there you walk through the dining room (or head up the stairs to the second floor) and into the kitchen, with a powder room tucked between the dining and kitchen. Do you see what I see off the kitchen? A porch!! I would screen it and when cooking keep my kitchen door open to let the fresh air in. In the back of the house is the master bedroom and bathroom with a walk in closet.

Poet's Cottage (NC0022) by Allison Ramsey Architects! Upstairs
Poet’s Cottage (NC0022) by Allison Ramsey Architects!
Upstairs

I love the upstairs, two bedrooms, a bathroom and a sitting room! Very generous bedrooms for sure! This is a great plan tucked into a nicely sized footprint. Not too big, not too small, it’s just right!

Catch you back here tomorrow!

House Plan: Curlew Cottage by Flatfish Island Designs!

Curlew Cottage - First Floor Plan
Curlew Cottage by Flatfish Island Designs

Flatfish Island Design… a cool architectural firm based on Sullivan’s Island in South Carolina. Many of their plans have wonderful porches where you can spend time and appreciate the beautiful area that we live in… For living in the South, these wonderful porches would also help keep some of the heat at bay so that the strong sun isn’t beaming in your windows warming your home up even more. This is a very attractive plan both inside and out. I love this one! The Curlew Cottage is 1,922 square feet and has 4 bedrooms and 3.5 bathrooms!

Curlew Cottage by Flatfish Island Designs - First Floor Plan
Curlew Cottage by Flatfish Island Designs – First Floor Plan

This plan has a first floor master suite, which is located in the back of the house. Perfect! The living, dining, kitchen is all located in the front part of the house and is an open plan. Look how open! Can you imagine the ways you could change your rooms around when you got tired of them? The possibilities… ENDLESS!

Curlew Cottage by Flatfish Island Design Second Floor Plan
Curlew Cottage by Flatfish Island Design – Second Floor Plan

The upstairs has three bedrooms, two bathrooms and a laundry. For just Fred and I personally, I would try to have the laundry downstairs (stackable perhaps??) and one bathroom upstairs, maybe two guest rooms and storage! I love storage, ha ha! That’s the good thing about Flatfish Designs, they will work with you to make a plan work for you and your family. What’s not to love?

Be sure to check out their other HOUSE PLANS, and their FAQ! Do you love this house plan, but you don’t need the upstairs? Check out Nippers Escape house plan! It’s basically the first floor… Also check out their Facebook page: Flatfish Island Designs great photos!

Read a bit about Flatfish Island Designs from their website, they seem like a really cool company – check them out!

At Flatfish Island Designs, we believe that comfortable living begins with great design, and that great design should be accessible to everyone. This sounds like a simple concept, but bringing those two aspects together has been difficult in the past.

Great Home Plans are not often Accessible

Great design is certainly available. There are capable architects in every city that can design a house plan to truly suit your lifestyle and your location. Of course, this takes extra time, effort, and cost. So, for many potential homeowners, this option is out of reach.

Accessible Home Plans are not often Great

Accessible, affordable design is also available, if you don’t mind making lots of compromises. At any home center you will find an entire wall of house plans-for-purchase. Or, you can choose from your homebuilder’s limited inventory of generic home plans. Unfortunately, there is very little connection between these cookie-cutter house plans and the people who will live in them.
Until now, you have had to choose between skilled, personal design and accessible, affordable design. Now, one home design team offers both.

Introducing Flatfish Island Designs

For years, Stephen Herlong and a team of talented designers have been creating exceptional quality custom homes for clients from around the country. Our team has worked through every detail of both the exterior and the interior of each house plan. This experience has given us an ingrained sense for purposeful design – that is, design for the way people live in their homes.
Today, Steve has created Flatfish Island Designs, a compilation of house plans for sale that capitalize on this experience. Each home plan in this expanding collection offers beautifully detailed architectural style and superior livability, without the significant investment of time and money that a truly custom home plan requires.

Flatfish Island: Purposeful, Livable, Accessible House Plans

So, whether you are looking for a cozy cottage house plan, a breezy bungalow beach home plan, or an expansive luxury open floor plan, there is a Flatfish Island design for you. And, if you don’t find precisely the house plan you desire, you are free to make modifications to your home plan using skilled Flatfish Island home designers, or the architect of your choosing.

For a truly livable, purposefully designed home plan that fits your personality, your lifestyle, your neighborhood and your budget, choose Flatfish Island Designs.

We invite you to view our Designs Gallery of house plans. If you have any questions, please contact us.

ALL IMAGES VIA flatfishislanddesigns.com, used with permission…

Catch you back here tomorrow!

House Plan: TNH-B-06A – Small Cottage Plan by Moser Design Group!

TNH-B-06A by Moser Design Group
TNH-B-06A by Moser Design Group

Another great cottage house plan by Moser Design Group out of Beaufort, SC. Amazingly talented, brilliant design in every single plan. This plan is the TNH-B-06A (Oh, I do wish they had names, I think that would be easier…) it is 1,471 square feet with 3 bedrooms and 2 bathrooms. This home has 9′ ceilings so it’s not squatty, it’s classy in every sense of the word. Who says small can’t be anything short of spectacular? Great porch on the front, and a nice covered stoop so if you’re going in the side entrance in pouring rain you won’t be soaking wet! Nice feature! Note they have two different elevations (check out their website via the link above to see the other elevation), which is the one I would choose…

TNH-B-06A by Moser Design Group
TNH-B-06A by Moser Design Group

I would tend to make the guest bedroom as you come in the door, that way guests have their own peace and quiet.  There is a Jack & Jill bathroom between Bedroom #2 and the front bedroom. Which is plenty. I would make bedroom #2 a study. I like the Living, Dining, Kitchen areas. I see one thing that Fred wouldn’t care for, the island on a diagonal, but that could easily be put straight (listen to me, I sound like I know what I’m talking about!)… I like it either way. Do I spy a pantry?! Woohoo! A great use of space for sure!

Check out the Moser Design Group website they have guest cottages, petite cottages, small cottages (which this is) right on up to homes over 2,800 square feet, so their website is definitely worth your time. Quality homes, I’ve seen them in person. Gorgeous!

***Some of you may have seen this post before… in your IN BOX. Anyone who signed up to receive an email version of this post would have received this on 8/12/14 (when I actually wrote it), because I didn’t enter the scheduled date, sigh… Also, if you want to get to the easier to read version from your email, just CLICK ON THE TITLE of the post via your email and **POOF** it’ll take you right there!

Catch you back here tomorrow!

House Plan: Small Cottage plan TNH-SC-17B by Moser Design Group

TNH SC 17 B by Moser Design Group
TNH SC 17 B by Moser Design Group

Moser Design Group… FABULOUS house plans. If you haven’t checked them out yet, you may want to check them out! Gorgeous, timeless design. Fred and I saw this plan being built in Palmetto Bluff, SC – gorgeous! Matter of fact, you could rent it! Just noticed that you can no longer rent this house… darn, it would have been a good way to see how the plan works for you!

TNH SC 17 B by Moser Design Group
TNH SC 17 B by Moser Design Group

I love, love, love how the master bedroom/bathroom is separated by the rest of the house by a screened in porch and hallway… how wonderful, it’s like a separate little house. I love that! Unique!

TNH SC 17 B by Moser Design Group
TNH SC 17 B by Moser Design Group

Moser offered a few variations on the upstairs, I like option B which includes two bedrooms, a bathroom and STORAGE! I. LOVE. STORAGE! Be sure to check out the other MOSER house plans… lovely!

All images via MoserDesignGroup.com used with permission…

Catch you back here tomorrow!

House Plan: Ribaut Square by Allison Ramsey Architects!

Ribaut Square C0557 plan by Allison Ramsey Architects
Ribaut Square C0557 plan by Allison Ramsey Architects

This is the Ribaut Square (C0557) house plan by Allison Ramsey Architects. This plan is 2155 square feet with 3 bedrooms and 3 bathrooms. I haven’t featured a plan like this, because these types of plans don’t normally catch my attention, but… this one did. It is masterfully laid out, check it out…

Ribaut Square C0557 plan by Allison Ramsey Architects
Ribaut Square C0557 plan by Allison Ramsey Architects

A 10′ deep porch. Nice! So very nice! Master bedroom and bath separate from the rest of the house… very nice! Laundry in close proximity to master… a big plus! Then you have the living space, open, but not too open…  So nice!

Ribaut Square C0557 plan by Allison Ramsey Architects
Ribaut Square C0557 plan by Allison Ramsey Architects

Two bedrooms upstairs, (perfect for guests!), with walk in closets, bathrooms and a sitting area, not to mention that fabulous porch! Nice to give guests their own space! Caution: with this plan, guests may never leave, ha ha… I wouldn’t want to!

I really like this plan, and am so happy I stumbled upon it!

All images via AllisonRamseyArchitect.com, used with permission…

Catch you back here tomorrow!