
This is the Ferrandaise House plan by Perch Plans. This plan is 3,298 square feet with 4 bedrooms, 3.5 bathrooms and a 2 car detached garage. The Ferrandaise plan is part of the Maison Provincial on their website. I love the addition of stone – it truly looks like it’s from a different region. So classy! (Click the link above to see more images of this plan!)
The large windows in this plan are so striking! You can see in some of the other images how you can see through the house which is visually striking!

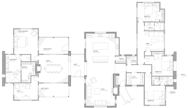
What a sprawling layout! This plan has everything you need for a large family and then some! Perch Plans has found a way to give everyone their own space and it’s magnificent!
I love how the entry is the small glass room between the left side of the house (master suite, study, dining) and the right side (kitchen/living, utility, three additional bedrooms, a few bathrooms and a media room – perfect to have a spot for your kids to hang out! This plan has it all!
The best part about the plans by Perch Plans is the customization that can be done – if you really see something that you would like modified to work better for you, they will work with you to take those dreams and make them reality, and it just doesn’t get any better than that!
Perch Plans
Website | Facebook | Instagram | FAQ
✍️ Until next time…
All images via perch plans.com, used with permission…
Images are not for construction or reproduction, they are property of the design firm.

Interesting bet it’s beautiful, I can see where you could customize to work for family’s,
LikeLiked by 1 person
❤️❤️
LikeLike