
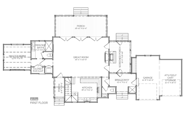
This is the Verona Residence House Plan by Lake & Land Studio! This image shows the back of the plan with some features that I absolutely adore… This gorgeous plan is 1,965 square feet with 3 bedrooms (plus possible bunk room) and 2.5 bathrooms. There is a large back porch and a wonderful (where you would find me!) side screen porch with a fireplace. Can you imagine? It would be difficult to leave such a special space! This image shows both the wonderful back porch that opens into the great room as well as the screen porch, which also opens into the great room as well as the breezeway that connects the house to the garage.

I love that the master suite has its own wing, an oasis in the midst of busy life is such a treat! This spacious kitchen is open to the great room, which can be a dining/living space – there is certainly plenty of room! When you look at the images you’ll see that the placement of the kitchen sink is exactly where it needs to be (in front of a window, how else can you wash dishes?) and there is wonderful storage underneath the stairway – brilliant! The renderings on their website gives you many wonderful ideas! So helpful!

Upstairs there are two bedrooms, a possible bunk room or storage room and a fabulous loft, which gives those who are upstairs their own space to hang out. #winwin
Lake + Land Studio
Website | Facebook | Instagram | Detailed INFO!
✍️ Until next time…
All images via lakeandlandstudio.com, used with permission…
Images are not for construction or reproduction, they are property of the design firm.
