
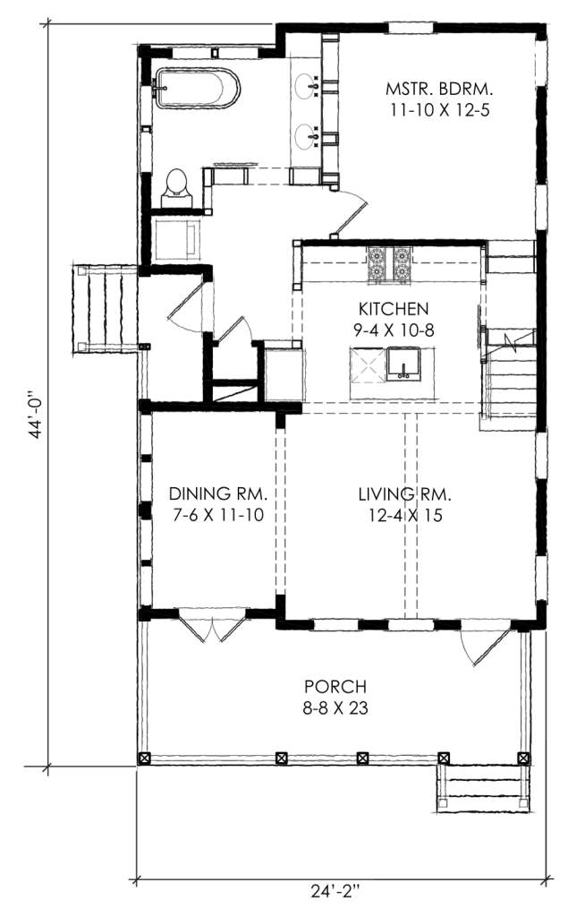
A small but mighty plan – love the porch (as always!) – this is a fabulous small plan that has a master suite downstairs. It’s a nice open plan on the inside. The lines are fabulous – Can you imagine the sound of the rain on the metal roof on the porch? How wonderful!
🌸 NOTE: Images will be returning to email notifications soon – WordPress is working on it!

This is the Hunting Island Cottage plan by Moser Design Group. This plan is also available on Southern Living’s website – it is plan SL1880.
The living/dining/kitchen is open offering wonderful views to the outdoors and if someone is in the kitchen they don’t feel so alone ;) – the rooms are light filled, which seems very cottage-like. I see lots of white paint in this space – giving it a back in time appeal. I love imagining us in different spaces.

Upstairs are two additional bedrooms with a shared bath. Great closet space which is always appreciated, especially in a smaller space!
Moser Design Group
Website | Facebook | Instagram | Plan
✍️ Until next time…