
Photo: PerchPlans.com
What beautiful style, right? Just wait until you see more images of this plan both inside and out. #itsawinner This house has such charm – I love the peek of the staircase through the window #wow
This is the Alderney house plan by Tim Brown Architecture for Perch Plans (see house plan and website links below). This plan is 2,306 square feet with 3 bedrooms and 2.5 bathrooms. I’ve always loved their plans, they have clean lines and a sharp appeal. What’s not to love! They mention how this plan works will on a narrow lot – always good to know, especially if you’re limited!

I like how the Living space is open yet off to the side – making it easy to interact with others in nearby rooms but with a little separation. The kitchen is fabulous, plenty of space – same with the dining area!
The master suite is tucked in the back of the house, which is always nice. It’s spacious and has everything you could possibly need.
I like that you enter the backdoor from the rear porch and walk into a utility space with washer/dryer, storage – perfect when weather conditions aren’t the best. Also note the small office area!
Check out a great blog post about the Alderney plan (link below) and possible customization.

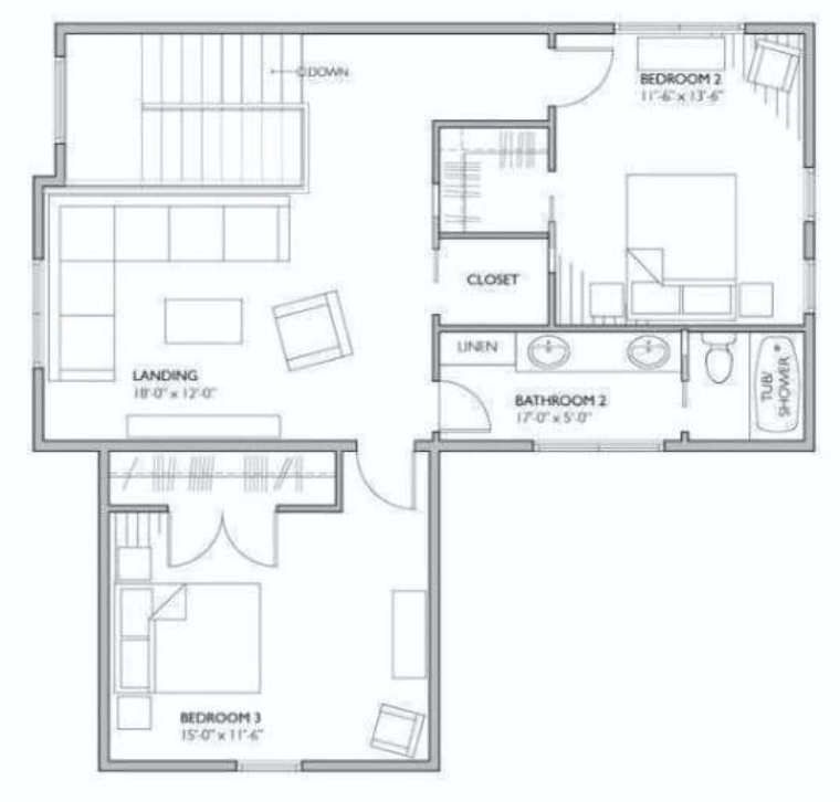
The upstairs is fabulous – it has two bedrooms, a bathroom as well as a living space. The addition of an extra living space (especially for children) makes this house live even larger (to me). There is more space and places to “get away” which is important!
Perch Plans
Website | Alderney House Plan | Blog
✍️ Until next time…
All images via perchplans.com, used with permission…
Images are not for construction or reproduction, they are property of the design firm.
Links updated January 11, 2025