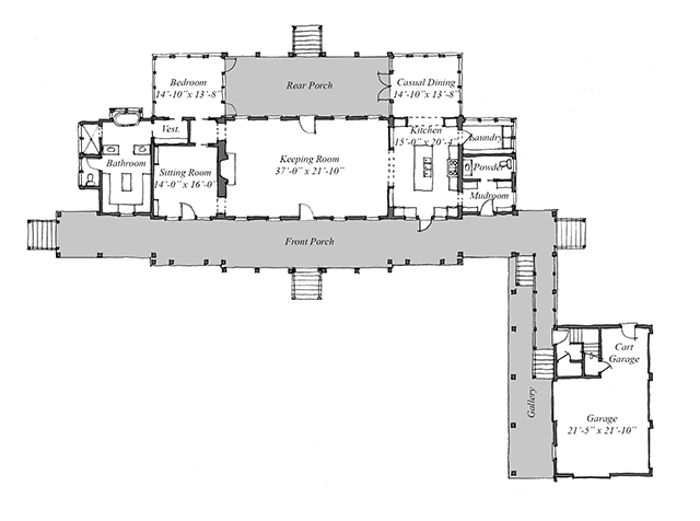
Just look at this amazing expanse of a porch – Can you imagine the wonderful gatherings this space could accommodate? There is also a rear porch accessible via the downstairs bedroom, casual dining space as well as the keeping room. Matter of fact, if you had glass door on the front and back door you could see in the front right through to the back!
This is the Idea House at Fontanel house plan by Historical Concepts for Southern Living House Plans. This plan is 3,065 square feet with 2 bedrooms and 2.5 bathrooms. This unique plan is built in the (much coveted) L-shape – boasting over 2,800 square feet of porches!
I love the master suite tucked to one side of this plan, with the living area in the middle and the kitchen/dining as well as laundry, powder room and mudroom off to the right. The garage is fabulous, even space for the golf cart. As well as a room above…
This is the suite above the garage – (wouldn’t it make the perfect studio or office – especially with so many people working from home now?), this is ideal! What a wonderful space – look at the images (Idea House link) – see for yourself! I love the images that show the real deal – stunning!
Historical Concepts, LLC
Website | Facebook | Instagram | Southern Living House Plans
✍️ Until next time…



WOW, I love this plan!
LikeLiked by 1 person
Sweet, is t it?!
LikeLike
My first thought (like yours) when I looked at that picture..”Can you imagine…?”
LikeLiked by 1 person
Cindy, it’s one of the things I love most about house plans. They’re interesting whether you’re looking for a house or not. I love to imagine myself in the space, things I might (or might not) change, how I would use some rooms vs. how they’re technically to be used. We have an older home and often will change rooms. Sometimes swapping dining and living or dining and study or living and study. We have a big time. Each time we do it it’s so fresh and new and we love it. Especially now #pandemicrecreation 😉
LikeLike