Porches… especially porches that wrap – make a stunning visual statement and provide areas for entertaining, relaxing, reading, the list goes on. A porch can make a house feel more like a home. Especially when you have part of the porch screened and part unscreened. The best of both worlds.
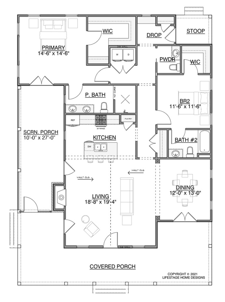
This is the Shiloh Creek house plan by Lifestage Home Designs, LLC – this plan is in the Southern Living house plan collection (SL-2079). This plan is 1,640 square feet with 3 bedrooms and 2.5 bathrooms.
In this plan the master suite is located downstairs, as well as an additional bedroom. When you walk into this plan you walk into the living/dining area. The kitchen is located behind the living area, and a powder room is located just down the hallway, before you get to the second bedroom. Nice storage everywhere, take note! This plan may not be large, but with so much storage it’s easily able to be lived in happily.
If you see changes that you would like to make this home more “you” – contact Southern Living, they’re fabulous from what I’ve heard. Explain to them what you want and they’ll let you know if they can make it happen!
Lifestage Home Designs, Inc.
Website | Facebook | Instagram | This Plan
👩💻 Until next time…

