I love looking for house plans that will fit into established neighborhoods nicely. It’s important, especially if you live in a historic neighborhood. This plan fits the bill for sure, and it works perfectly on a narrow lot to boot! There is a front porch as well as a small screened (side) back porch…
This is the Prentiss Residence house plan by Lake and Land Studios. This plan is 2,350 square feet with 4 bedrooms and 3 bathrooms. Be sure to check out the link to this plan – there are many images of interior/exterior to help you envision what this plan could look like. #sohelpful
You enter this plan via a nice front porch (love!) and enter into the living/dining/kitchen. The master bathroom/bedroom/closet is located on the front of the house before the stairs that lead to the second floor. After the staircase is another bedroom with access to a bathroom from both the bedroom and hallway across from the kitchen. There is a nice laundry room towards the back of the house.
I love that Lake and Land Studios will customize their plans if you need them to. I might opt for a nice screened porch across the back of this plan instead of an attached garage, they have great outbuilding plans if you are considering a detached garage – (However, if you’re on a narrow lot, this configuration will work perfectly). In turn, taking away a garage and adding screened porch or latching on to the existing side screened porch I might want to move the laundry room to have a clear view of the outdoors. Then again, sometimes it’s nice to be tucked away – so nice to keep the garage in place. It’s so nice to have options AND to know that they can help guide you in a direction that best suits you and how you will be using this house.
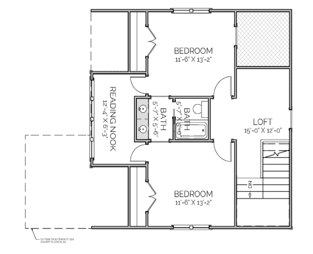
Upstairs there are two more bedrooms and a shared bathroom as well as a reading nook (LOVE THIS!) and a loft area. So much room to grow into!
Lake and Land Studio
Website | Facebook | Instagram | This Plan
🏠 I work with architects/designers from all over, so if you’re interested in one of their plans, please let them know that you saw it here on artfoodhome.com!
Until next time…


