
A beautiful house plan both inside and out! This is exquisite with the front and back porches (WOW). So many wonderful spaces to be happy in! I have been a fan of the Lake + Land designs forever, if you aren’t familiar, you are about to become a fan as well…

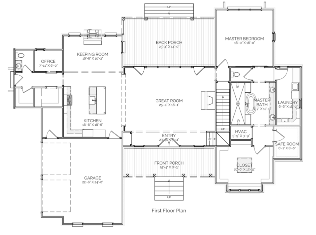
This is the Corinth Residence house plan by Lake and Land Design Studio – this plan is 2,332 square feet with 3 bedrooms and 2 1/2 bathrooms. What is not to love, right? Lake and Land will work with you to make your dream home a reality.
Talk about dream homes… I noticed on Lake and Land’s Facebook page (link below), they shared a post of a Corinth home for sale in MS. Look through those images, they are STUNNING to say the least! What a beautiful plan and what a stunning home! It really helps you visualize!
Now, about this plan… after seeing the real life images of it, I was head over heels for this house. Stunning, especially when situated on the water or other beautiful setting. I like the master suite being downstairs and I LOVE, LOVE, LOVE the safe room.
When you walk in the front door off the stunning front porch, you walk into and entry area and then into the great room. I love that you can see through to the outside. The back porch is a place where a lot of memories will be made, no doubt! The kitchen is open to the great room and is in close proximity to the powder room, office and a wonderful “keeping room” – perfect for talking to others while cooking.

The upstairs of this plan is two bedrooms each with a toilet and sink and a shared Jack and Jill shower/bath area – pretty smart! That way you have your space, you can get ready except for a bath or shower. That makes it so much nicer!
Click HERE to read more about the plan from the Lake + Land website.
Lake + Land Design Studio
Website | Facebook | Instagram | House Plan
✍️ Until next time…