I truly feel that most of Allison Ramsey’s house plans would fit into established neighborhoods that already foster a sense of character and perhaps have been there for a while. I’m usually thinking about my neighborhood (and nearby neighborhoods) when I mention this. When I first saw this plan, even the interior with built in bookcases – it truly looks like an older home with all the charm. Let’s take a peek…
This is the Bluff Towne Cottage (053138) house plan by Allison Ramsey Architects. This plan is 2,790 square feet with 4 bedrooms and 3 bathrooms – it’s gorgeous, and if you check the link below regarding this plan you’ll see images of this actual home, stunning!
The main floor has a wonderful front porch, oh, the time that could be spent! You enter this plan into a foyer where you can access a den/bedroom on the left, a powder room a few steps away, and if you walk straight ahead you will enter the great room. The dining, kitchen and living area are off the great room on the right hand side of this plan. The master suite, which includes the bedroom, two walk in closets and the master bath are on the left hand side of this plan.
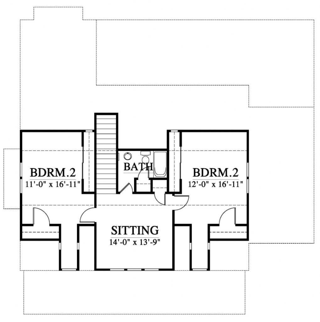
Upstairs you’ll find two bedrooms with a shared bath and a nice sitting area. Perfect if you work from home, need office space, studio space or have children upstairs where they can have their own entertainment space.
Check out more images via their website!
Allison Ramsey Architects
Website | Facebook | Instagram | This Plan
🏠 I work with architects/designers from all over, so if you’re interested in one of their plans, please let them know that you saw it here on artfoodhome.com!
Until next time…



Really like this house plan, the photos are wonderful.
Fred
>
LikeLiked by 1 person
Agree! Also, seeing the images on their website is so helpful to picture how this plan would work for you. #stunning
>
LikeLike