
Have you ever been to a Southern Living Showcase Home? If you run across one in your travels, definitely check it out! It’s always fun to actually go inside a certain house plan so you can envision it as your very own. But it’s also helpful to go inside to see not necessarily how they have a room decorated, but how the furniture is placed – you can see if you like the flow that way or if you prefer it a different way. Today’s house plan is a beauty.

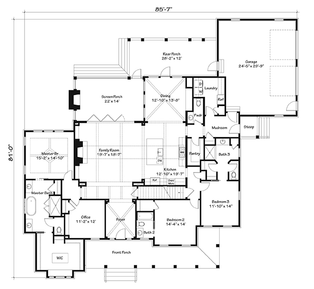
This is the Whiteside Farm house plan, designed by Todd Wilson for Southern Living House Plans. This plan is 3,610 square feet with 4 bedrooms and 4.5 bathrooms. Most of the bedrooms are located downstairs. The master suite is on the left and there are two additional bedroom located on the right side of the house. (Click the Whiteside Farm link above to see images of interior as well!)
There is a generous front porch that leads to an elegant foyer. This plan has so much. An open kitchen/family/dining room. A rear porch and a rear screened porch. Wow.
The kitchen is fabulous and includes a pantry (I hear the angels singing) – take a peek at all this plan has to offer, which is quite a bit!

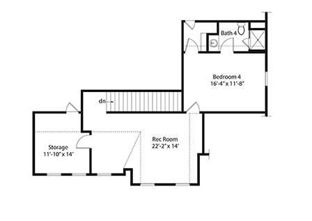
Upstairs there is another bedroom/bathroom, a rec room and a storage room. What’s not to love about this plan? This bedroom or rec room could also make a good studio (whether it’s art, yoga, exercise, photography) or fabulous office space for those working from home!
Wilson Design & Construction
Website | Facebook | Instagram | Other
✍️ Until next time…
All images via houseplans.southernliving.com
✨Photo by Lauren W. Glenn✨
Pingback: Whiteside Cottage House Plan by Todd Wilson for Southern Living! – ARTFOODHOME.COM