
Whitten Architects. When I ran across their website, all I could think about was sharing this beautiful home with you. They build new homes as well as create gorgeous renovations. This happens to be a renovation which I haven’t featured before. Just look at what they have done. This is a stunning home in Maine called the Cortland Barn Farmhouse.
They started with a barn then added square footage creating a one of a kind home. The barn is now the garage and bedroom (in the downstairs space), and another bedroom, bathroom, sitting room and plenty of storage (in the upstairs space). Yes! Storage! This home had 905 square feet added on to the barn and 1,458 sf of barn renovations, which brings the total square footage to 2,363. It has 3 bedrooms and 2.5 bathrooms. This home is just exactly the kind of home I would love to live in. It’s both modern and traditional at the same time. It’s clean and built smartly, keeping in mind storage and so many wonderful details.
Be sure to check out the photos on their website. Read about the details of this renovation!
What a gorgeous room, and I love the glimpse to the stairway. It adds an element of design all by itself, a beautiful work of art. What you do not see are the wonderful windows in this room… I’m telling you, check out their website to see what I’m talking about!
The kitchen is equally as gorgeous with plentiful cabinets, counter space and everything that makes a functional yet beautiful kitchen.
This photo did me in! The back of the house is just as beautiful as the front. The bedroom windows offer light with privacy, and I love the entryway to the backyard. Every single detail was taken into consideration with this home. Bravo!
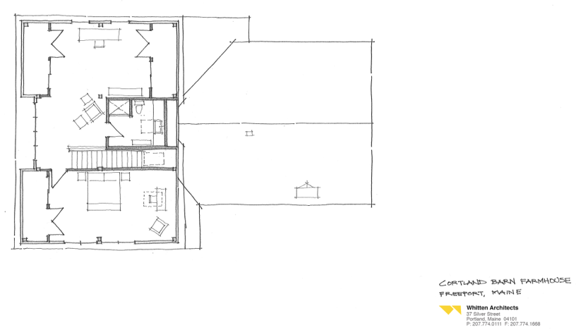
This is the layout of the home to give you an idea. On the front of the home is the garage, with the bedroom behind, that was the existing barn that was renovated. The additional added space is comfortable, beautiful, and most of all, useful!
Upstairs is another bedroom which is more like a guest suite. There is also a bathroom, a sitting room, and just look at all that storage! Very valuable!
To find an architect that can renovate on this level is a wonderful find. If you are looking to renovate, I wouldn’t hesitate to contact Whitten Architects!
I want to give credit where credit is due…
Thank you to Whitten Architects and Jessie Carroll for providing so much information!
Photography:
Collaborators:
Images are not for construction or reproduction, they are property of the architectural firm.
Catch you back here tomorrow!